Leave a Message

Thank you for your message. We will be in touch with you shortly.

Explore Our Properties

Property Description

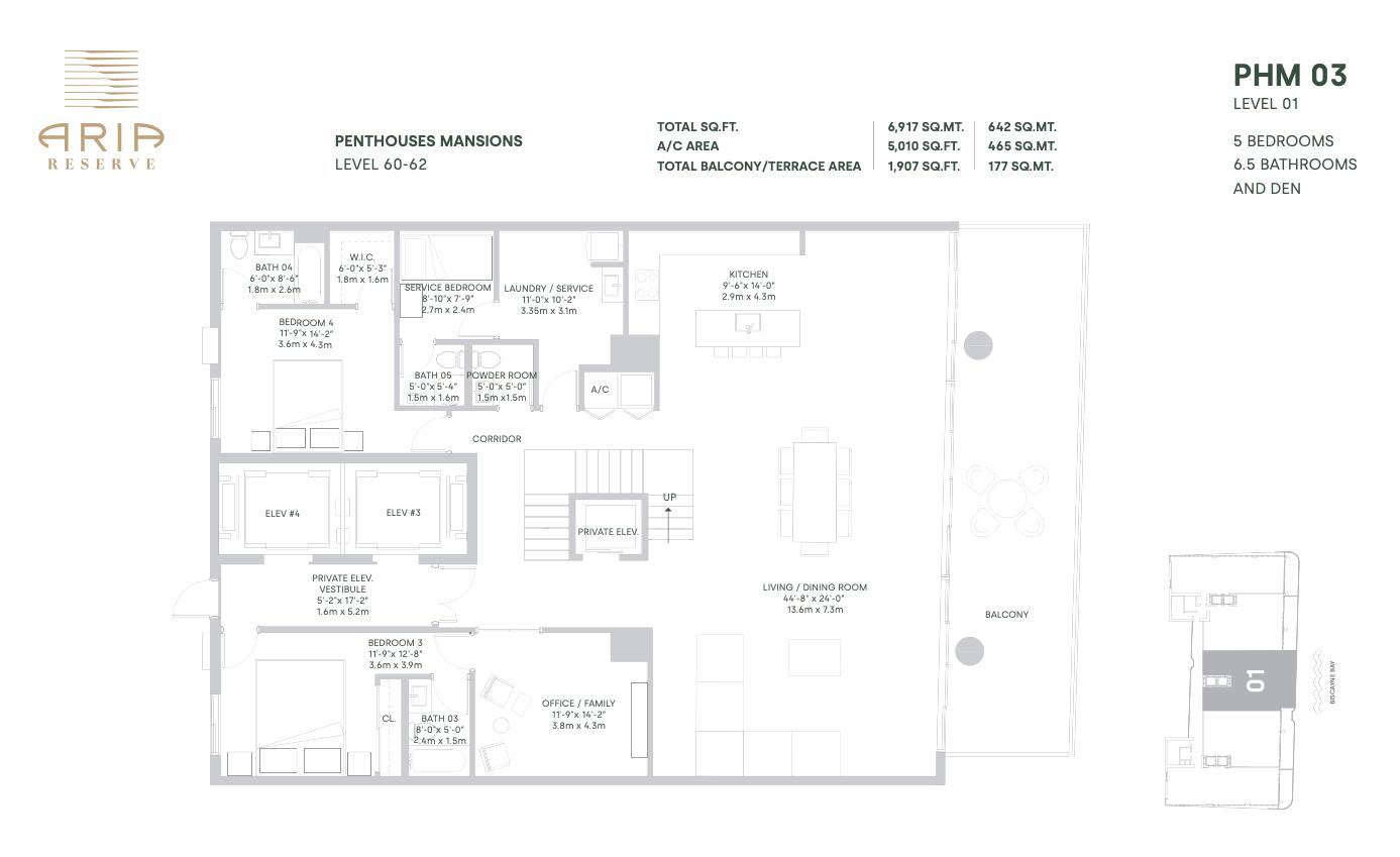
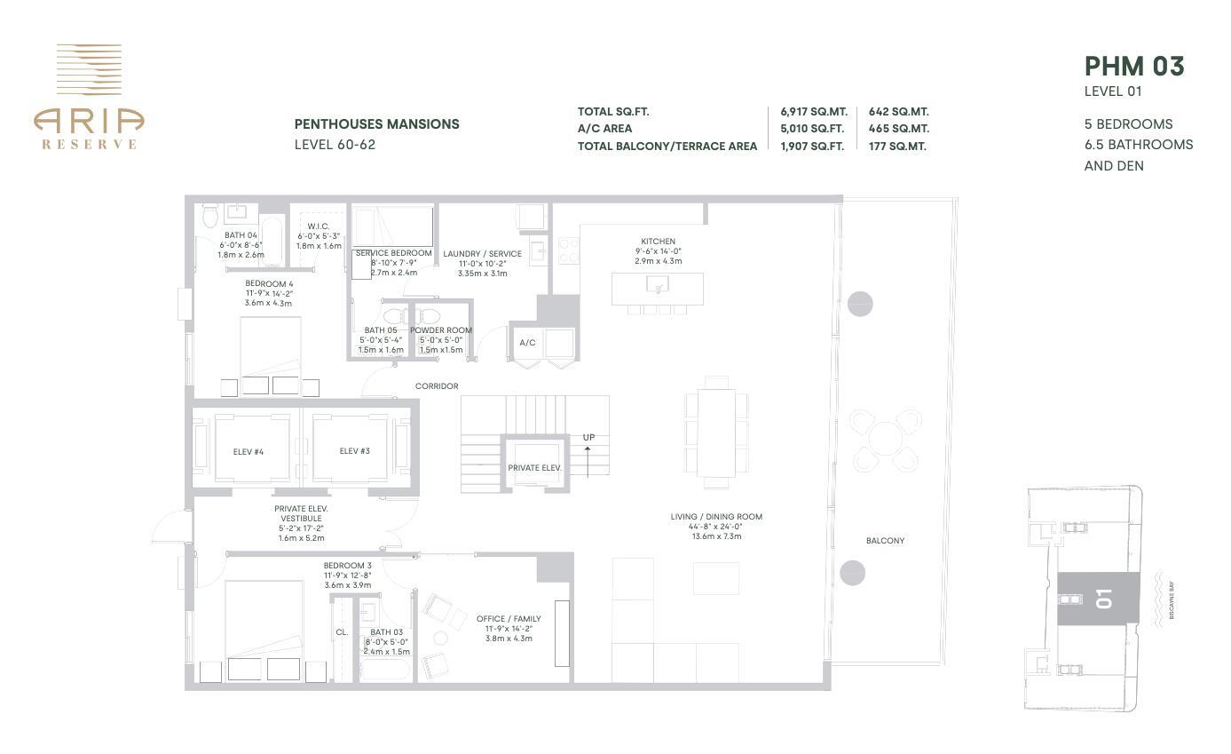
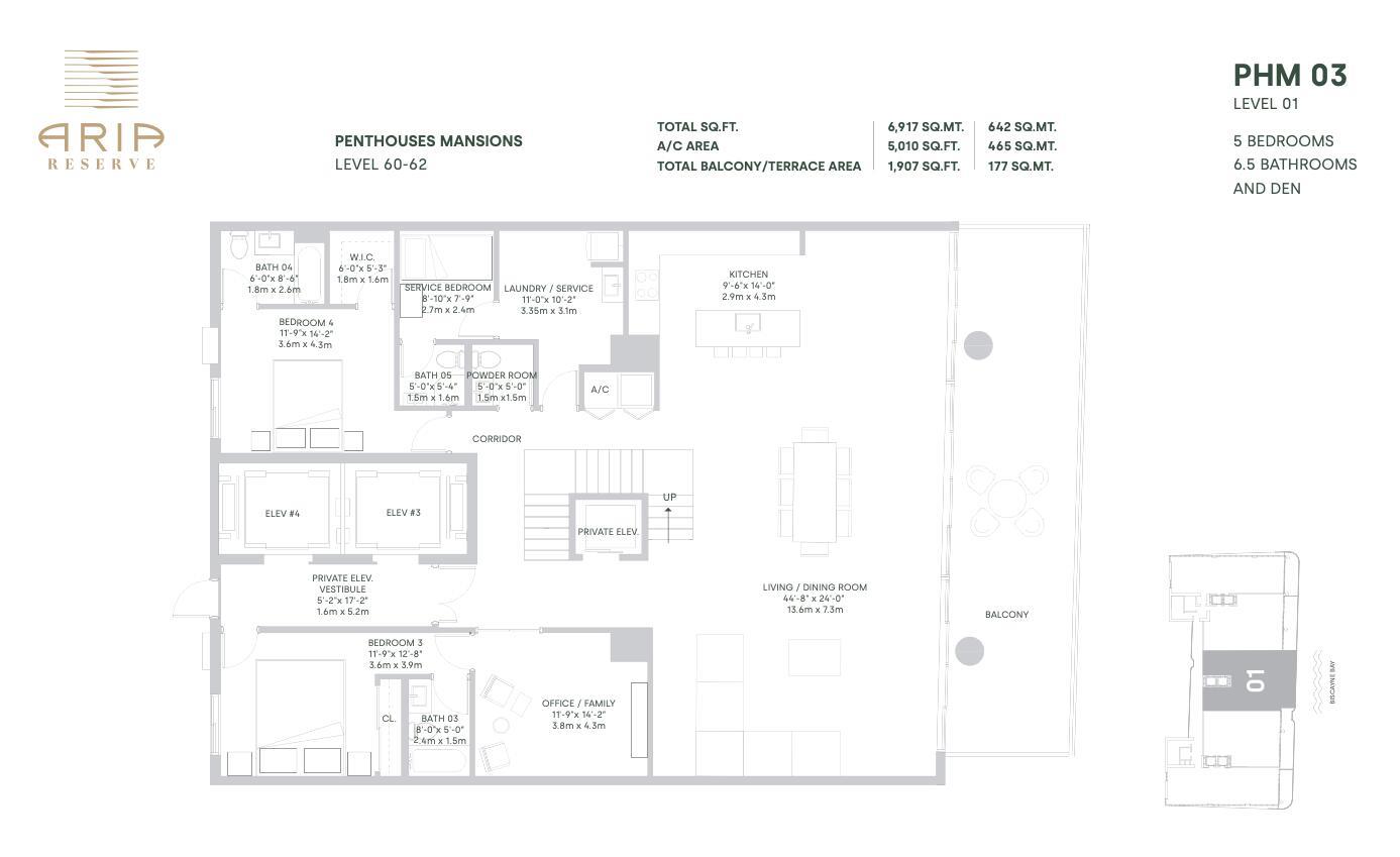
The Top Floor Penthouse! A Signature Landmark Soaring Above It All. One of the exclusive Penthouse Mansions, this rare three-story residence spans floors 60 through 62, crowning Aria Reserve South with an unmatched vantage point over Miami's most iconic district. A true statement of elevated living, it delivers panoramic views, soaring volume, and a level of prestige found only at the highest tier of Miami luxury. Offering a Private, air-conditioned 3-car garage and over 5,000 sq. ft. of refined interior living, 1,900+ sq. ft. of private outdoor space, and a sophisticated layout featuring 5 bedrooms, 6.5 bathrooms + a private den/office. Completed in 2025 and fully finished, the home showcases panoramic, unobstructed views of Biscayne Bay, the Atlantic Ocean, and the Miami skyline through dramatic floor-to-ceiling impact glass.
A private elevator delivers you directly into your exclusive foyerno shared hallwayssetting the tone for a lifestyle centered on privacy and elegance. Expansive glass walls flood each level with natural light, while multiple terraces capture both sunrise and sunset from soaring heights. The crown jewel: a private rooftop level with its own pool, creating a one-of-a-kind sky retreat overlooking the entire city and coastline.
Perfectly positioned at the heart of Miami, you're just:(" 3 minutes to Wynwood(" 4 minutes to the Design District / Midtown(" 5 minutes to Downtown Miami / Brickell(" 8 minutes to Miami Beach(" 15 minutes to Miami International Airport
Set within more than 5 acres of waterfront reserve, Aria Reserve offers an amenity collection unlike anything in Miami:(" 547 linear feet of baywalk with paddleboard/kayak access and a custom water-sports marina(" Bayview cafe and a signature waterfront restaurant(" Sunrise + sunset pools, whirlpool spa, solarium decks, cabanas & poolside daybeds(" Exclusive adult lounge with bay-facing terrace(" Private wine room, business center, conference rooms & co-working suites(" State-of-the-art fitness center, tennis courts, paddle court, basketball, yoga lawn & outdoor training areas(" Luxury spa with massage rooms, sauna, steam, and relaxation lounges(" Kids' splash pad, dog park, theater room & meditation gardens(" Telescope observatory deck, fire-pit lounges & lush landscaped grounds(" 24-hour concierge, valet & package room
Aria Reserve stands as the tallest waterfront dual-tower development in the United States, setting a new benchmark for ultra-luxury bayfront living with sweeping views, immersive nature, and an unparalleled amenity suite.

Overview

Property Status
For Sale
Lot Size
2,178 Sq.Ft.
MLS ID
R11142586
Property Type
Condo
Year Built
2025

Features & Amenities

Total Area
6,917 Sq.Ft.
Water Frontage
Bayfront, Ocean Access, Ocean Front
View Description
Bay, City, Ocean
Stories
62
Garage Spaces
3.0
Utilites
Cable Available
Pool
Above Ground, Association
Lot Features
1/4 Acre
Parking
Attached, Garage
Heat Type
Central
Air Conditioning
Central Air
Appliances
Cooktop, Dryer, Dishwasher, Ice Maker, Microwave, Oven, Refrigerator, Washer
Other Interior Features
Tub Shower, Bar, Walk-In Closet(s)
HOA Amenities
Basketball Court, Business Center, Cabana, Clubhouse, Dog Park, Fitness Center, Playground, Pickleball, Park, Pool, Parking, Recreation Facilities, Sauna, Spa/Hot Tub, Tennis Court(s), Trail(s), Elevator(s)
Security Features
Gated Community
Other Exterior Features
Balcony, Outdoor Living Area
Elementary School
Phillis Wheatley
Middle School
Jose De Diego
High School
Booker T. Washington
Sales Price
$8,695,000
Real Estate Tax
$17,764/yr
HOA
$1,700/mo
Zoning
4604

Downloads

700 NE 24th Street Ph-6003

Schedule a Tour

We would love to help you see this beautiful home! As a full-service brokerage, we can help you tour. Please submit an offer, and answer questions about the buying process.

Thank you

for your interest in 700 NE 24th Street Penthouse Mansion-6003, Miami, FL 33137

700 NE 24th Street Ph-6003
Navigate
700 NE 24th Street Ph-6003
explore in 3d

Mortgage Calculator

Estimate your monthly mortgage payment, including the principal and interest, property taxes, and HOA. Adjust the values to generate a more accurate rate.
$0,000 Your Payment 20 15 65
$0,000 Your Payment

I'm Interested In

700 NE 24th Street Ph-6003

or
  • CallNicholas Gonzalez

    License #SL3348979

    (561) 306-7220
  • Follow Us On Instagram